Zum Hauptinhalt springen Zur Suche springen Zur Hauptnavigation springen
KOSTENLOSER SOCKELLEISTEN-MUSTERVERSAND
VERSANDKOSTENFREI AB 1.000,00 EUR WARENWERT

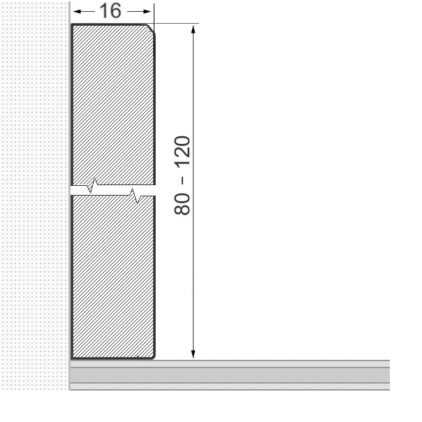
Massivholz-Sockelleiste 120x16mm gefast - Eiche roh

Massivholzleiste Eiche Roh - robust - langlebig - zeitlos

Unsere hochwertigen Sockelleisten gefaste Vorderkante 120X16 mm fertigen wir aus massivem Eichenholz. Damit verbindet diese Massivholzleiste edles Design mit höchster Stabilität, für einen perfekten Übergang zwischen Wand und Boden, sowie ein harmonisches Raumbild.

In der Standardausführung fertigen wir unsere Massivholzleisten mit praktischer Clipfräsung.
Durch das praktische ClipSystem lassen sich die Sockelleisten schnell und einfach an der Wand montieren.

Daten im Überblick

  • Holzart: Eiche
  • gefaste Vorderkante
  • Abmessung: 120 X 16 mm Länge: 1.000 - 2.400 mm fallende Längen
  • Oberfläche: Roh, gehobelt und geschliffen
  • Befestigung: Clip-System, Kleben, Schrauben

Material:

Jedes Stück Holz ein Unikat.

Unsere Sockelleisten sind aus einem Stück massivem Eichenholz, wie der Stamm gewachsen ist, gefertigt. Dadurch entsteht ein sehr natürliches und harmonisches Bild in der Holz- und Farbstruktur, für eine angenehme Raumwirkung.

Das Eichenholz bietet viele positive Eigenschaften, eine intensive Maserung und gilt als sehr beständig. Von Natur aus ist das Holz sehr witterungsfest und widerstandfähig. Besonders herausragend sind die Eigenschaften - Robustheit, Haltbarkeit und Langlebigkeit - der Eiche.

In Ausführung Roh haben Sie die Möglichkeit die Massivholzleiste aus Eiche, unbehandelt zu nutzen oder nachträglich zu bearbeiten. Durch Beizen, Räuchern, Lasieren oder Lackieren, können Sie die Sockelleiste nach Ihren Wünschen gestalten.

Montage:

Sie können die Sockelleisten durch Kleben oder Schrauben befestigen. Zur Auswahl steht Ihnen die Montage mittels Leistenkleber, doppelseitigen Klebeband oder dem Befestigungs-Set.

Durch die Ausführung mit Clipfräsung, haben Sie außerdem die Möglichkeit, die Sockelleisten mittels praktischen Clip-System schnell und einfach an der Wand zu befestigen. Damit haben Sie eine schnelle und saubere Montagelösung mit dem großen Vorteil der ebenfalls schnellen Demontage!

Bei Renovierungsarbeiten, Auszug aus der Wohnung oder nachträglichen Verlegung von Kabel, lassen sich die Massivholzleisten, problemlos und zerstörungsfrei demontieren.



Massivholz-Sockelleiste 120x16mm gefast - Eiche roh
Höhe: 120 mm
Deckbreite: 16 mm
Länge: Fallende Längen 1.000 - 2.400 mm
Holzart: Eiche
Form: gefaste Vorderkante
Material: Massivholz
Oberfläche: Roh
Hersteller "Leiste24"

Leiste24 GmbH
Merzdorfer Weg 29
03042 Cottbus
Deutschland

Telefon: 0355 121005015
E-Mail: info@leiste24.de

Weiterführende Links des Herstellers
Produktgalerie überspringen

Werkzeuge

wolfcraft Konturenlehre
wolfcraft Konturenlehre
Artikelnummer: 06060010-01

Regulärer Preis: € 18,95
Produkt Anzahl: Gib den gewünschten Wert ein oder benutze die Schaltflächen um die Anzahl zu erhöhen oder zu reduzieren.
STCK
wolfcraft Schmiege und Schneidlade 105 / 70 mm
wolfcraft Schmiege und Schneidlade 105 / 70 mm
Artikelnummer: 06060010-02

Regulärer Preis: € 48,95
Produkt Anzahl: Gib den gewünschten Wert ein oder benutze die Schaltflächen um die Anzahl zu erhöhen oder zu reduzieren.
STCK
wolfcraft Boden-Einpasser
wolfcraft Boden-Einpasser
Artikelnummer: 06060010-03

Regulärer Preis: € 19,95
Produkt Anzahl: Gib den gewünschten Wert ein oder benutze die Schaltflächen um die Anzahl zu erhöhen oder zu reduzieren.
STCK
wolfcraft Universalwinkel
wolfcraft Universalwinkel
Artikelnummer: 06060010-04

Regulärer Preis: € 18,95
Produkt Anzahl: Gib den gewünschten Wert ein oder benutze die Schaltflächen um die Anzahl zu erhöhen oder zu reduzieren.
STCK
wolfcraft Streichmaß für Zollstock
wolfcraft Streichmaß für Zollstock
Artikelnummer: 06060010-05

Regulärer Preis: € 8,95
Produkt Anzahl: Gib den gewünschten Wert ein oder benutze die Schaltflächen um die Anzahl zu erhöhen oder zu reduzieren.
STCK
wolfcraft 3D-Gehrungswinkel
wolfcraft 3D-Gehrungswinkel
Artikelnummer: 06060010-06

Regulärer Preis: € 8,95
Produkt Anzahl: Gib den gewünschten Wert ein oder benutze die Schaltflächen um die Anzahl zu erhöhen oder zu reduzieren.
STCK
wolfcraft Handsäge / Feinsäge
wolfcraft Handsäge / Feinsäge
Artikelnummer: 06060010-10

Regulärer Preis: € 22,95
Produkt Anzahl: Gib den gewünschten Wert ein oder benutze die Schaltflächen um die Anzahl zu erhöhen oder zu reduzieren.
STCK
wolfcraft Fuchsschwanz
wolfcraft Fuchsschwanz
Artikelnummer: 06060010-11

Regulärer Preis: € 22,95
Produkt Anzahl: Gib den gewünschten Wert ein oder benutze die Schaltflächen um die Anzahl zu erhöhen oder zu reduzieren.
STCK
wolfcraft Dual Sicherheits-Trapezklingenmesser
wolfcraft Dual Sicherheits-Trapezklingenmesser
Artikelnummer: 06060010-07

Regulärer Preis: € 18,50
Produkt Anzahl: Gib den gewünschten Wert ein oder benutze die Schaltflächen um die Anzahl zu erhöhen oder zu reduzieren.
STCK
wolfcraft Universal-Klappmesser
wolfcraft Universal-Klappmesser
Artikelnummer: 06060010-08

Regulärer Preis: € 18,00
Produkt Anzahl: Gib den gewünschten Wert ein oder benutze die Schaltflächen um die Anzahl zu erhöhen oder zu reduzieren.
STCK
wolfcraft 5x Profi-Trapezklingen
wolfcraft 5x Profi-Trapezklingen
Artikelnummer: 06060010-77

Inhalt: 5 Stück (€ 0,78 / 1 Stück)

Regulärer Preis: € 3,90
Produkt Anzahl: Gib den gewünschten Wert ein oder benutze die Schaltflächen um die Anzahl zu erhöhen oder zu reduzieren.
SET
wolfcraft Schmiege und Schneidlade 140 / 100 mm
wolfcraft Schmiege und Schneidlade 140 / 100 mm
Artikelnummer: 06060010-12

Regulärer Preis: € 49,95
Produkt Anzahl: Gib den gewünschten Wert ein oder benutze die Schaltflächen um die Anzahl zu erhöhen oder zu reduzieren.
STCK
D-TACK Schlosserhammer 500g
D-TACK Schlosserhammer 500g
Artikelnummer: 06060008-99

Regulärer Preis: € 16,50
Produkt Anzahl: Gib den gewünschten Wert ein oder benutze die Schaltflächen um die Anzahl zu erhöhen oder zu reduzieren.
STCK
D-TACK Latthammer MAGNET
D-TACK Latthammer MAGNET
Artikelnummer: 06060009-99

Regulärer Preis: € 24,50
Produkt Anzahl: Gib den gewünschten Wert ein oder benutze die Schaltflächen um die Anzahl zu erhöhen oder zu reduzieren.
STCK
D-TACK Gummihammer weiß
D-TACK Gummihammer weiß
Artikelnummer: 06060010-99

Regulärer Preis: € 14,95
Produkt Anzahl: Gib den gewünschten Wert ein oder benutze die Schaltflächen um die Anzahl zu erhöhen oder zu reduzieren.
STCK
Produktgalerie überspringen

Befestigung

Leistenkleber
Leistenkleber
Artikelnummer: 06040001-00

Regulärer Preis: € 9,99
Produkt Anzahl: Gib den gewünschten Wert ein oder benutze die Schaltflächen um die Anzahl zu erhöhen oder zu reduzieren.
Kart
Paneel- und Leistenkleber Classic
Paneel- und Leistenkleber Classic
Artikelnummer: 06040020-00

Regulärer Preis: € 14,95
Produkt Anzahl: Gib den gewünschten Wert ein oder benutze die Schaltflächen um die Anzahl zu erhöhen oder zu reduzieren.
Kart
Montagekleber Heso-Tack-D - 310 ml - sehr haftstark
Montagekleber Heso-Tack-D - 310 ml - sehr haftstark
Artikelnummer: 060400040-00

Regulärer Preis: € 12,95
Produkt Anzahl: Gib den gewünschten Wert ein oder benutze die Schaltflächen um die Anzahl zu erhöhen oder zu reduzieren.
Kart
Premium Acryl-Dichtmasse
Premium Acryl-Dichtmasse
Artikelnummer: 06040010-00

Regulärer Preis: € 8,95
Produkt Anzahl: Gib den gewünschten Wert ein oder benutze die Schaltflächen um die Anzahl zu erhöhen oder zu reduzieren.
Kart
Montagekleber Collo-Pur Turbo
Montagekleber Collo-Pur Turbo
Artikelnummer: 06040030-00

Regulärer Preis: € 16,50
Produkt Anzahl: Gib den gewünschten Wert ein oder benutze die Schaltflächen um die Anzahl zu erhöhen oder zu reduzieren.
Kart
Neutral Silikon Premium 1 FOR ALL Fugenmasse - 310 ml
Neutral Silikon Premium 1 FOR ALL Fugenmasse - 310 ml
Artikelnummer: SILIKON-PREMIUM.00003

Inhalt: 0.31 ml (€ 32,10 / 1 ml)

Regulärer Preis: € 9,95
Produkt Anzahl: Gib den gewünschten Wert ein oder benutze die Schaltflächen um die Anzahl zu erhöhen oder zu reduzieren.
Kart
Beko Allcon 10 Konstruktionsklebstoff - 310 ml
Beko Allcon 10 Konstruktionsklebstoff - 310 ml
Artikelnummer: 06040001-10

Regulärer Preis: € 19,90
Produkt Anzahl: Gib den gewünschten Wert ein oder benutze die Schaltflächen um die Anzahl zu erhöhen oder zu reduzieren.
Kart
Beko Allcon 10 Konstruktionsklebstoff - 150 ml
Beko Allcon 10 Konstruktionsklebstoff - 150 ml
Artikelnummer: 06040001-11

Regulärer Preis: € 14,80
Produkt Anzahl: Gib den gewünschten Wert ein oder benutze die Schaltflächen um die Anzahl zu erhöhen oder zu reduzieren.
Kart
Produktgalerie überspringen

Kunden haben sich auch angesehen

Massivholz-Sockelleiste 120x16mm gefast - Eiche lackiert
Massivholz-Sockelleiste 120x16mm gefast - Eiche lackiert
Artikelnummer: 91205034.00001

Regulärer Preis: € 19,79
Produkt Anzahl: Gib den gewünschten Wert ein oder benutze die Schaltflächen um die Anzahl zu erhöhen oder zu reduzieren.
M
Massivholz-Sockelleiste 120x16mm gefast - Eiche geölt
Massivholz-Sockelleiste 120x16mm gefast - Eiche geölt
Artikelnummer: 91205033.00001

Regulärer Preis: € 19,79
Produkt Anzahl: Gib den gewünschten Wert ein oder benutze die Schaltflächen um die Anzahl zu erhöhen oder zu reduzieren.
M
Massivholz-Sockelleiste 120x16mm gefast - Eiche roh
Massivholz-Sockelleiste 120x16mm gefast - Eiche roh
Artikelnummer: 91205032.00002

Regulärer Preis: € 18,79
Produkt Anzahl: Gib den gewünschten Wert ein oder benutze die Schaltflächen um die Anzahl zu erhöhen oder zu reduzieren.
M
Rabatt
Vierkant Massivholz-Sockelleiste 120 mm - Eiche geölt
Vierkant Massivholz-Sockelleiste 120 mm - Eiche geölt
Artikelnummer: 91203330

Verkaufspreis: € 17,75 Regulärer Preis: € 21,29 (16.63% gespart)
Produkt Anzahl: Gib den gewünschten Wert ein oder benutze die Schaltflächen um die Anzahl zu erhöhen oder zu reduzieren.
M
Massivholz-Sockelleiste 120mm gefaste Vorderkante - Eiche gelackt
Massivholz-Sockelleiste 120mm gefaste Vorderkante - Eiche gelackt
Artikelnummer: 81205034.00001

Inhalt: 2.4 M (€ 21,29 / 1 M)

Regulärer Preis: € 51,10
Produkt Anzahl: Gib den gewünschten Wert ein oder benutze die Schaltflächen um die Anzahl zu erhöhen oder zu reduzieren.
STCK